
Wohnhaus G
Höslwang
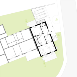
Aus zwei wird Drei oder Miteinander statt Auseinander.
Auf dem inmitten von Höslwang gelegenen Grundstück, mit dem Wohnhaus der Eltern und dem Erweiterungsbau des Bruders, hat die Schwester mit Familie einen Anbau errichten lassen.
Trotz des knapp bemessenen Grundstücksgrundzuschnitts ist anstatt eines Neubaus auf einem entfernt gelegenen Grundstück auf der grünen Wiese im Sinne der familiären Nähe und der dörflichen Innenverdichtung ein kompaktes und doch innenräumlich großzügiges Familienwohnhaus entstanden.
Standort:
Raiffeisenstr. 5, 5a
83129 Höslwang
Bauherr:
Familie G
Projektteam:
Wolfgang Lechner
Beatrice Arpé
Leistungsphasen nach §34 HOAI:
LPH 1-4









